This page looks best with JavaScript enabled

35 Free Log Cabin Floor Plans Comfortable

 ·  ☕ 4 min read  ·  ❤️ Aric Gutkowski

35+ Free Log Cabin Floor Plans Comfortable

.

This couple finished the exterior of their cabin working only weekends in just 5 months. Start planning for your dream house with hundreds of free log home house plans from log home living magazine.


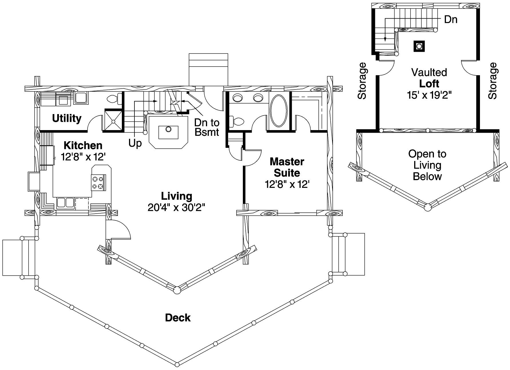
Free Small Cabin Plans Cabin Floor Plans with Loft, log ...
Free Small Cabin Plans Cabin Floor Plans with Loft, log ... from www.treesranch.com
All log homes and log cabin kits are designed custom as per your request at no addition charge. The house is made of log and it is sturdy structure and design. Utilising traditional building methods, the art of constructing your very own diy log cabin.

With a wide selection, you will find a log cabin design and floor plan to fit your lifestyle.

Log cabin homes best house plans log cabins mountain cabins. Woods cabin is a blank slate to start your ideal mountain log cabin retreat. All the log cabin building wrap protection to protect your log home materials during construction. 30 free cabin plans for do it yourselfers wanting to build a modest home, thinking of downsizing or building your first home? The cozy cabin pictured below is perfect as a summer retreat, weekend getaway, or a great retirement cottage. Log cabin plans are a favorite for those seeking a rustic, cozy place to call home. Looking to build or redesign your log home or cabin? See more ideas about cabin floor plans, cabin floor, log homes. Log cabin home plans & floor plans. Battle creek log homes proudly offers a complete range of floor plans for log cabins and log homes of all sizes and layouts. Have you any plans for a we now supply log cabin laminate flooring. Gastineau oak log homes and log cabins featuring nationwide dealers numerous floor plans log cabin kits custom designs modular small common model events. Log cabins are a great way to build your own sustainable home, and with a little knowledge, the right tools, and some manpower, you can build your own for a fraction of the cost. By creating your log cabin floor plans you are actually building your log cabin in your head and on paper ahead of time. Download our free floor plan from our website! Log style house plan 58983 with 4 bed, 4 bath. Log cabin homes best house plans log cabins mountain cabins. They didn't have any previous building experience, so studied books, videos and taught themselves as they went along. All we need is your vision and your ready to begin. Every home we build is designed and constructed specifically. This couple finished the exterior of their cabin working only weekends in just 5 months. You will love spending time in a beautiful home made of natural wood and also other traditional material. 30+ free cabin plans for diy'ers | tiny house plans. Log cabin home designs are made from logs that have not been milled into conventional lumber. With a wide selection, you will find a log cabin design and floor plan to fit your lifestyle. You're sure to find something you love! The ease of construction and use of often highly available logs. Log houses originally came from the swedes. Search hundreds of log cabin and log home floor plans. Search for your dream cabin floor plan with hundreds of free house plans right at your fingertips. Most people who want a log or timber frame home have been envisioning how they want their house to look from the outside for a long time before they actually have a plan for building it.

Share on
https://antarcticoffended.com/frtepxh4?key=e717486216bcba1c2dfdfbe9981956d6