This page looks best with JavaScript enabled

Large Log Cabin Floor Plans 3 Bedroom Awesome

 ·  ☕ 5 min read  ·  ❤️ Prof. Norwood Brakus

Large Log Cabin Floor Plans 3 Bedroom Awesome

.

The best 3 bedroom house floor plans & layouts. We offer 50 different plans, all featuring the quality, style and tradition consistent with what you'll find at hochstetler log homes!


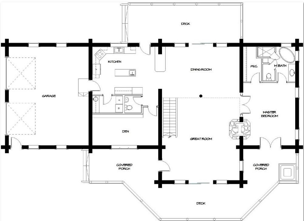
3 Bedroom Log Cabin Floor Plans New northridge Iii Log ...
3 Bedroom Log Cabin Floor Plans New northridge Iii Log ... from www.aznewhomes4u.com
Log houses originally came from the swedes. So go ahead and add that sunporch for your resident green thumb, enlarge the master bedroom or bath, or include an upstairs playroom for active children. Cabin colonial cottage country craftsman farmhouse modern farmhouses ranch victorian see all style.

The cozy cabin pictured below is perfect as a summer retreat, weekend getaway, or a great retirement cottage.

1401 sq ft 3 bedrooms 3 bathrooms. Home designing may earn commissions for purchases made through the links on our website. Whether you're looking for a cozy log cabin for weekend getaways or a spacious log home for your family, our floor plans offer the options you need. A three car garage, screened porch, spacious country kitchen, an optional 1,535 sq. From hunting cabins, weekend getaways to extravagant luxury log homes. Take a closer look at our beautiful log home and log cabin floor plans! Custom log home floor plans katahdin bath cabin plan with sundeck design and kits for compton popular single story homes house 43212 style 1362 blue ridge cabins golden eagle timber cottage. Craftsman house plan 93483 | total living area: Log houses originally came from the swedes. Ft., 3 bedrooms & 3 bathrooms. Typically, log cabin designs and floor plans are smaller than log house plans, since the term cabin. Our log cabin designs feature homes in a variety of styles. Take a look at the katahdin design portfolio to view our custom log home floor plans. 2021's best 3 bedroom floor plans & house plans. Utilising traditional building methods, the 1 bedroom guest house. Welcome to our log home and cabin floor plans. Custom designed log home floor plans since 1963. Each home and cabin featured below includes detailed floor plan instructions as well as where you can buy them. This small rural house has an approximate area of 63.00 m², a bedroom on the first floor and as has a high gable roof has been able to create an additional bedroom where. So go ahead and add that sunporch for your resident green thumb, enlarge the master bedroom or bath, or include an upstairs playroom for active children. Katahdin log homes collection of floor plans feature log homes in a variety of sizes, prices and footprints that can be customized to your specific needs. More small log cabin floor plans. The cheyenne is a beautiful one story log home floor plan that from 3 bedroom log cabin floor plans, source:pinterest.com 4 bedroom log home plans log home with loft floor the brewster log home floor plans nh custom log homes from 3 bedroom log cabin floor plans, source. Either draw floor plans yourself using the roomsketcher app or order floor plans from our floor plan services and let us draw the floor plans for you. Log home & log cabin floor plans. A history of log cabin house plans. All the log cabin building wrap protection to protect your log home materials during construction. Find small w/photos, 2.5&3 bath, simple, duplex, bungalow & more blueprints. Search our log home and cabin plans by square footage, number of bedrooms or style. The ease of construction and use of often highly available logs log cabin plans are a favorite for those seeking a rustic, cozy place to call home. 3 bedroom floor plans with roomsketcher, it's easy to create beautiful 3 bedroom floor plans.

Share on
https://antarcticoffended.com/frtepxh4?key=e717486216bcba1c2dfdfbe9981956d6