This page looks best with JavaScript enabled

Perfect 3 Bedroom Ranch House Plans With Walkout Basement Most Important

 ·  ☕ 4 min read  ·  ❤️ Prof. Mohammad Grant I

Perfect 3 Bedroom Ranch House Plans With Walkout Basement Most Important

.

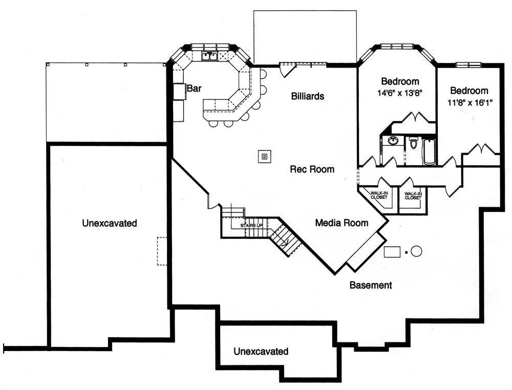
More storage space, an extra bath or rooms for family teens. Classic craftsman ranch home plan with 3 bedrooms.


3 Bedroom Craftsman Ranch Home Plan - 69554AM ...
3 Bedroom Craftsman Ranch Home Plan - 69554AM ... from s3-us-west-2.amazonaws.com
Three bedroom two bathroom colonial style ranch with walkout basement. You can use your basement in many ways: If you get the basement done properly, it can be a nice and useful place.

If your lot doesn't have the space to build out and around, you can build down instead!

Whether it's a simple change or an extensive modification, our experienced team of designers can help your dream home become a reality. Basement is a great way for your house to look better. They can add square footage without increasing its footprint. Small shed houses with spectacular ideas. What's more, a walkout basement affords homeowners an. Treatment sliding patio doors with built in blinds. Depending upon the region of the country in which you plan to build your new house, searching through house plans with basements may result in finding your dream house. Affordable small rustic house plans. Ranch style walkout basement plans. Your options for a walkout basement are endless: Ranch, farmhouse, modern), sq ft (e.g. Reverse house plans with readable text and dimensions. Walkout basement house plans daylight basement on sloping lot. Basements are the most minimal livable story and is typically completely or in part subterranean level. 2021's leading website for floor plans & designs with walkout basement. Having a finished basement can also increase the worth of your home. 3 bedroom ranch house plans with walkout basement many people use the term ranch house to refer to any one story home it s a specific style too the modern ranch style evolved in the post wwii era when land was plentiful and demand was high 3 bedroom ranch house plans with walkout. You need to remember that individuals that are looking for dwellings often choose the ones with finished basements. Perfect 3 bedroom house plans with basement design. Walkout basement home plans luxury ranch style house plans with basement globalchinasummerschool. Three bedroom two bathroom colonial style ranch with walkout basement. These plans make a great option for families because the extra room is so flexible. Build a family room with a fireplace, add extra bedrooms or customize the space for fitness needs or a house office or art studio. If you get the basement done properly, it can be a nice and useful place. Find small & large rambler style home designs w/walkout basement! They normally have roof statues of 8' and are regularly completed off as living or storage room as required by the property holder. When you buy a house plan online, you have extensive and detailed search parameters that can help you narrow down your design choices. A house plan with a basement might be exactly what you're looking for. Digital plan emailed to you in pdf format allows making minor changes and printing copies on home printer or local print shop and sharing with contractors, subs, decorators, and more. Walkout basement home plans are the perfect sloping lot house plans, providing additional living space at a basement which opens to the backyard. Exterior wall type 2x4 2x6 concrete icf log all plans.

Share on
https://antarcticoffended.com/frtepxh4?key=e717486216bcba1c2dfdfbe9981956d6